Highlights
Pet Friendly
Location
Tour 135 N 63rd St
Contact
Real Estate Management Advisors LLC
Nearby rentals
Renter hub
Property management
Real Estate Management Advisors LLC
Appliances
| Range | Refrigerator |
Building
| Cats OK | Dogs OK |
One-time.
One-time. Refundable.
Questions about this property’s policies and fees?

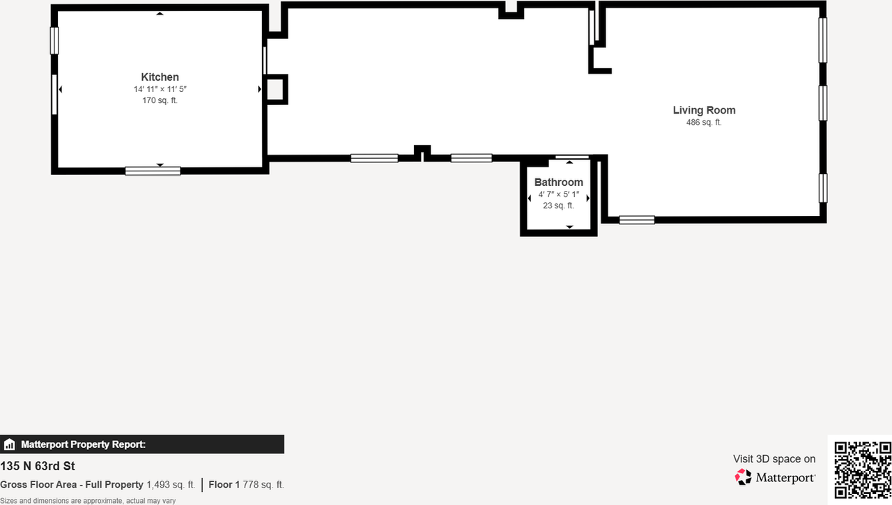
Virtual Tour: https my matterport com show ?m=AAxFcqtXX3x This Philadelphia home offers a blend of modern amenities and classic charm across three floors. The ground floor features a living room with a striking chandelier and rich hardwood flooring. A textured fireplace adds character to one of the living spaces, complemented by plush carpeting and a ceiling fan for comfort. The kitchen is efficiently designed with wooden cabinetry, tiled flooring, and updated appliances. Large windows throughout the home allow for ample natural light, creating a bright and airy atmosphere. The upper floors house the bedrooms, including a spacious primary suite. These rooms feature soft carpeting and ceiling fans for added comfort. Located at 135 N 63rd St, this property combines the convenience of urban living with the comfort of a multi-level home, making it an ideal residence for those seeking a balance of space and functionality in the heart of Philadelphia. Qualifications / General Screening Criteria: • Rental applications must be complete, correct and verified. • Gross monthly income must provable and be at least 3 times rent or tenant must have a housing choice voucher. • Applicants must have a proven history of on-time rental payments not including the COVID-19 emergency period. • Applicants must have a good relevant credit history or tenant must have a housing choice voucher. • Applicants must have no evictions in the last 4 years except during the COVID-19 emergency period.
| Neighborhood | Haddington |
|---|---|
| Zip code | 19139 |
| Type | House for rent |
4-bedroom apartments at 135 N 63rd St cost about 18% less than the average rent price for 4-bedroom apartments in Haddington.
| Month | Median Rent |
|---|---|
| February 2024 | $2,200 |
| March 2024 | $2,197 |
| April 2024 | $2,187 |
| May 2024 | $2,381 |
| June 2024 | $2,398 |
| July 2024 | $2,324 |
| August 2024 | $2,298 |
| September 2024 | $2,250 |
| October 2024 | $2,237 |
| November 2024 | $2,231 |
| December 2024 | $2,200 |
| January 2025 | $2,202 |
| February 2025 | $2,250 |
| March 2025 | $2,277 |
| April 2025 | $2,284 |
| May 2025 | $2,300 |
| June 2025 | $2,350 |
| July 2025 | $2,400 |
| August 2025 | $2,400 |
| September 2025 | $2,376 |
| October 2025 | $2,271 |
| November 2025 | $2,199 |
| December 2025 | $2,183 |
| January 2026 | $2,089 |
| Month | Median Rent |
|---|---|
| February 2024 | $1,450 |
| April 2024 | $1,420 |
| May 2024 | $1,516 |
| June 2024 | $1,600 |
| July 2024 | $1,723 |
| August 2024 | $1,874 |
| September 2024 | $1,885 |
| October 2024 | $1,700 |
| November 2024 | $1,866 |
| December 2024 | $1,831 |
| January 2025 | $1,700 |
| February 2025 | $1,700 |
| March 2025 | $1,910 |
| April 2025 | $2,200 |
| May 2025 | $2,120 |
| June 2025 | $1,816 |
| July 2025 | $1,800 |
| August 2025 | $1,857 |
| September 2025 | $1,966 |
| October 2025 | $1,887 |
| November 2025 | $1,778 |
| December 2025 | $1,950 |
Can I afford to live at 135 N 63rd St?
Bedrooms
4+ bedroomsRent-to-income ratio
30%
$63,800/yr
5900 race st
philadelphia, PA, 19132
1500 w ontario st
philadelphia, PA, 19140