Highlights
Pet Friendly
Location
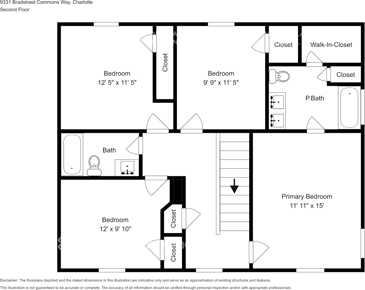
Tour 9331 Bradstreet Commons Way
Contact
Invitation Homes
Our team has verified this companyNearby rentals
Renter hub
Property management
Invitation Homes
Our team has verified this companyLocated in a highly valued area, this residence is positioned in the 97.44 percentile for value for money, making it an attractive option for potential renters. The availability of outdoor spaces enhances its appeal, especially for pet owners. With 20 photos available, prospective renters can easily get a comprehensive view of the property’s features and amenities.
Things you’ll love
Great for
Apartment Amenities
| Patio | Porch |
| Walk-in Closet |
Building
| Cats OK | Dogs OK |
| Garage Attached |
Grounds
| Garage Parking |
One-time.
One-time. Refundable.
Contact for more information on pet policy.
Questions about this property’s policies and fees?

Lease this home and get more from Invitation Homes professional property management. This home comes fully loaded with quality amenities, must-have services, high-end tech and ProCare® professional maintenance. Your estimated total monthly payment is $1999.70. That covers your base rent, $1860.00 + our required services designed to make your life easier: Air Filter Delivery Fee ($9.95), Internet & Media ($85), Smart Home with video doorbell ($40), and Utility Billing Service Fee ($4.75). Base rent varies based on selected lease term. You deserve a quality home that you can shape to fit your personality. And here it is. Invite your family and friends for quality time in a home that reflects your spirit. The living space's stylish finishes offer a blank canvas you can make your own. The cooking space is roomy and set up to accommodate a cook who knows their way around a kitchen. Cooking will be less of a chore thanks to these granite countertops, premium cabinets and stainless steel appliances. The backyard brings the whole house together. Keep the fun going in this spacious backyard that your furry friends will be more than happy to claim for themselves. Neighborhood amenities include a tot lot and community pool. Apply online today! At Invitation Homes, we offer pet-friendly, yard-having homes for lease with Smart Home technology in awesome neighborhoods across the country. Live in a great house without the headache and long-term commitment of owning. Discover your dream home with Invitation Homes. Our Lease Easy bundle – which includes Smart Home, Air Filter Delivery, and Utilities Management – is a key part of your worry-free leasing lifestyle. These services are required by your lease at an additional monthly cost. Monthly fees for pets and pools may also apply. Home Features and Amenities: Air Conditioning, Covered Porch, Garage, Granite Countertops, Long Lease Terms, Luxury Vinyl Plank, Patio, Pet Friendly, Smart Home, Stainless Steel Appliances, Walk in Closet, W/D Hookups, and professionally managed by Invitation Homes. Neighborhood Features and Amenities: Community Pool, Tot Lot Invitation Homes is an equal housing lessor under the FHA. Applicable local, state and federal laws may apply. Additional terms and conditions apply. This listing is not an offer to rent. You must submit additional information including an application to rent and an application fee. All leasing information is believed to be accurate, but changes may have occurred since photographs were taken and square footage is estimated. Furthermore, prices and dates may change without notice. Every approved applicant must confirm the status of pet(s) in their home through Petscreening. com and pay applicable pet registration fees prior to the execution of the final lease agreement. See InvitationHomes website for more information. Beware of scams: Employees of Invitation Homes will never ask you for your username and password. Invitation Homes does not advertise on, Social Serve, etc. We own our homes; there are no private owners. All funds to lease with Invitation Homes are paid directly through our website, never through wire transfer or payment app like Zelle, Pay Pal, or Cash App. invitationhomes. com fraud-prevention For more info, please submit an inquiry for this home. Applications are subject to our qualification requirements. Additional terms and conditions apply. CONSENT TO CALLS & TEXT MESSAGING: By entering your contact information, you expre..
How 9331 Bradstreet Commons Way compares to other nearby properties.
Positives
Considerations
| Neighborhood | Silverwood |
|---|---|
| Zip code | 28215 |
| Type | House for rent |
4-bedroom apartments at 9331 Bradstreet Commons Way cost about 12% less than the average rent price for 4-bedroom apartments in Charlotte.
| Month | Median Rent |
|---|---|
| February 2024 | $2,285 |
| March 2024 | $2,294 |
| April 2024 | $2,343 |
| May 2024 | $2,361 |
| June 2024 | $2,379 |
| July 2024 | $2,358 |
| August 2024 | $2,345 |
| September 2024 | $2,298 |
| October 2024 | $2,301 |
| November 2024 | $2,295 |
| December 2024 | $2,291 |
| January 2025 | $2,286 |
| February 2025 | $2,286 |
| March 2025 | $2,297 |
| April 2025 | $2,300 |
| May 2025 | $2,338 |
| June 2025 | $2,362 |
| July 2025 | $2,376 |
| August 2025 | $2,365 |
| September 2025 | $2,332 |
| October 2025 | $2,327 |
| November 2025 | $2,297 |
| December 2025 | $2,298 |
| January 2026 | $2,303 |
| Month | Median Rent |
|---|---|
| February 2024 | $2,185 |
| March 2024 | $2,275 |
| April 2024 | $2,299 |
| May 2024 | $2,270 |
| June 2024 | $2,261 |
| July 2024 | $2,299 |
| August 2024 | $2,216 |
| September 2024 | $2,190 |
| October 2024 | $2,175 |
| November 2024 | $2,146 |
| December 2024 | $2,120 |
| January 2025 | $2,147 |
| February 2025 | $2,143 |
| March 2025 | $2,197 |
| April 2025 | $2,237 |
| May 2025 | $2,315 |
| June 2025 | $2,297 |
| July 2025 | $2,290 |
| August 2025 | $2,345 |
| September 2025 | $2,173 |
| October 2025 | $2,124 |
| November 2025 | $2,106 |
| December 2025 | $2,164 |
| January 2026 | $2,115 |
Can I afford to live at 9331 Bradstreet Commons Way?
Bedrooms
4+ bedroomsRent-to-income ratio
30%
$74,400/yr
| 3 years ago | $1,935 |
10801 plaza rd ext
charlotte, NC, 28215
405 s davidson st
charlotte, NC, 28202
5833 millhaven ln
charlotte, NC, 28269
Silverwood | Charlotte, NC
239 listings
890 listings