Zumper
modified
5+ Days Ago

Highlights

  • Private balcony
  • Quartz countertops
  • Designer details
  • Walk-in closet
  • Designer finishes
  • Open-concept kitchen

Location

Los Angeles, CA 90042, USA|Highland Park
Hi! Let’s figure out if this property is right for you.

Powered by Zumper AI

Tour 259-259 1/4 South Avenue 54

Contact

Management

Four Brothers Real Estate (CWIG)

Property Overview

259-259 1/4 South Avenue 54 receives a solid Zumper Expert Rating of 8.1, reflecting its strong overall appeal to renters, particularly highlighted by its competitive pricing and excellent amenities. Notable features like a private balcony, walk-in closet, and open-concept kitchen enhance its desirability, while its prime location offers convenient access to schools and local attractions. Additionally, the property stands out with a substantial photo collection, providing a clear insight into its features and quality.

This summary uses Zumper’s proprietary data. “Zumper Expert Ratings” and “Things you’ll love” are based on our internal analyses of market trends and renter insights.

Zumper Expert Rating

8.1
Very Good
With a solid 8.1 out of 10 overall, 259-259 1/4 South Avenue 54 is a great option for renters. While some aspects, like Quality, might not be as distinguished as other properties nearby, 259-259 1/4 South Avenue 54 has a number of attractive features—namely its Price— so you can be assured your rent will come with a high standard of living.

Things you’ll love

  • More space
  • Middle school nearby
  • Images Available

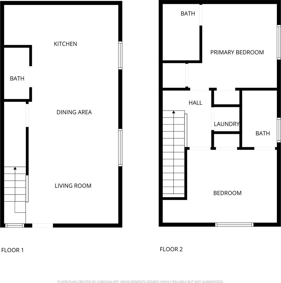
Floor plans

257-259 1/4 South Avenue 54 - 257 1...2 bed2.5 bath1,033 sqft$3,500 /moBrand New Construction in Highland Park! Welcome to 257 1/2 Avenue 54, a beautifully designed two-story townhouse offering 2 bedrooms and 2.5 bathrooms with high-end finishes and modern details throughout. The first floor showcases a spacious open-concept layout with living, dining, and kitchen areas seamlessly connected, highlighted by custom white oak cabinetry, quartz countertops, and a large center island. A stylish powder room adds convenience for guests on this level. Upstairs, you'll find two master suites, each featuring its own en-suite bathroom for privacy and comfort. The washer and dryer closet is also conveniently located on the second floor. Designer upgrades include wide-plank white oak flooring, custom iron railings, recessed lighting, and spa-inspired bathrooms with quartz counters and porcelain tile. All appliances are included, and the home is equipped with a state-of-the-art mini-split HVAC system for individualized climate control. Additional highlights include sol
257-259 1/4 South Avenue 54 - 257 1...4 bed4.5 bath2,025 sqft$4,950 /moBrand-new luxury townhome in the heart of Highland Park! Welcome to 257 1/4 Avenue 54, a brand-new tri-level townhouse featuring 4 bedrooms and 4.5 bathrooms with spacious, light-filled interiors. On the main entry level, a staircase leads to the second floor where you'll find a stunning great room with an open-concept floor plan. This expansive living and dining area is anchored by a wraparound kitchen with sleek white oak cabinetry, quartz countertops, stainless steel appliances, and a large island perfect for entertaining. A convenient powder room is available for guests, and this floor also includes a private 1-bedroom, 1-bathroom en-suite unit, ideal for a home office or guest suite. Upstairs, the third level offers three generously sized bedrooms, each with its own en-suite bathroom, providing ultimate privacy and comfort. A dedicated laundry room with side-by-side washer and dryer completes this level. Throughout the home, you'll find wide-plank white oak flooring, designer tile
257-259 1/4 South Avenue 54 - 259 1...4 bed4 bath1,776 sqft$4,950 /moBrand New Construction in Highland Park! Welcome to 259 ½ Avenue 54, a stunning 4-bedroom, 4-bathroom tri-level townhouse offering modern luxury and thoughtful design. Enter into a light-filled foyer and ascend to the expansive second floor, where the heart of the home awaits. This level boasts a spacious open-concept living and dining area with soaring ceilings, white oak flooring, custom iron railings, and abundant natural light. The chef's kitchen features a large center island, sleek white oak cabinetry, quartz countertops, and a complete brand-new stainless steel appliance package including refrigerator, range, dishwasher, and microwave. A private bedroom and full bathroom are also located on this floor, perfect for guests or a home office. The top level offers three spacious bedrooms, each with its own en-suite bathroom, providing privacy and convenience for every resident. A laundry area with washer and dryer is also located on this level for added ease. Designer touches continu

Schools near 259-259 1/4 South Avenue 54

Richard Riordan Primary Center

5531 monte vista st

los angeles, CA, 90042

K-4Public

Monte Vista Street Elementary School

5423 monte vista st

los angeles, CA, 90042

2-5Public
C+

City of Angels

221 s eman ave

los angeles, CA, 90063

K-12Public
B

Computer Science Virtual Academy

333 s beaudry ave 11th floor

los angeles, CA, 90017

K-12Public

Leadership & Public Service Virtual Academy

333 s beaudry ave 11th floor

los angeles, CA, 90017

K-12Public
Powered byniche.com
Advertisement

Internet available near 259-259 1/4 South Avenue 54

Neighborhood

Highland Park | Los Angeles, CA

NEIGHBORHOOD VIBE
Peaceful and quiet
Noise-canceling headphones not required in this mostly noise free area.

Getting around CA 90042 near Los Angeles

Walking

6/10
Some shops and stores are within a few minutes.

Driving

7/10
This area is close to freeways and has adequate parking options.

Cycling

5/10
More spots are within biking distance and some roads are cyclist-friendly.

Transit

6/10
Frequent public transit options are within walking distance.

Points of interest for Los Angeles, CA 90042

Groceries

9/10
At least one supermarket within a 10-minute walk

Shopping

5/10
Several shops within walking distance

Cafes

6/10
Some cafés within a few minutes’ walk

Restaurants

7/10
Variety of restaurants within a few minutes' walk

Primary schools

10/10
At least one elementary school within a 5-minute walk

High schools

6/10
At least one high school within a 15-minute walk

Parks

8/10
Very large amount of park space within a few minutes' walk

Nightlife

4/10
Some bars within walking distance

Compare similar properties nearby

featured image of 5750 Hollywood Blvd

Fusion Hollywood

Our team has verified this company

Hollywood Studio District • 5750 Hollywood Blvd

1–3 Beds

$2,729–$7,896

dogs and cats ok
Yes
in-unit laundry
Yes
dishwasher
No
featured image of 4575 Santa Monica Blvd

4575 Santa Monica

Our team has verified this company

East Hollywood • 4575 Santa Monica Blvd

1–2 Beds

$1,745–$2,950

dogs and cats ok
No
in-unit laundry
Yes
dishwasher
Yes
featured image of 200 N Vermont Ave

SageLA - BRAND NEW

Our team has verified this company

East Hollywood • 200 N Vermont Ave

1–2 Beds

$2,466–$4,920

dogs and cats ok
Yes
in-unit laundry
Yes
dishwasher
Yes
featured image of 1714 N Mccadden Pl

Fusion Encore Hollywood

Our team has verified this company

Hollywood Hills West • 1714 N Mccadden Pl

1–2 Beds

$2,199–$4,840

dogs and cats ok
Yes
in-unit laundry
Yes
dishwasher
No
featured image of 5700 W 6th St

Masselin Park West

Our team has verified this company

Mid-City West • 5700 W 6th St

1–2 Beds

$2,360–$3,520

dogs and cats ok
Yes
in-unit laundry
No
dishwasher
Yes
featured image of 125 4th Street

HWH Luxury Living

Our team has verified this company

Downtown Los Angeles • 125 4th Street

1–2 Beds

$2,400–$5,180

dogs and cats ok
Yes
in-unit laundry
Yes
dishwasher
Yes
featured image of 355 Glendale Blvd

Inspire Echo Park

Our team has verified this company

Greater Echo Park Elysian • 355 Glendale Blvd

1–3 Beds

$2,190–$6,182

dogs and cats ok
Yes
in-unit laundry
Yes
dishwasher
Yes
featured image of 4121 Wilshire Boulevard

Los Altos Apartments

Our team has verified this company

Greater Wilshire • 4121 Wilshire Boulevard

1–2 Beds

$3,250–$5,800

dogs and cats ok
Yes
in-unit laundry
Yes
dishwasher
Yes
featured image of 5750 Hollywood Blvd

Fusion Hollywood

Our team has verified this company

Hollywood Studio District • 5750 Hollywood Blvd

1–3 Beds

$2,729–$7,896

dogs and cats ok
Yes
in-unit laundry
Yes
dishwasher
No
featured image of 4575 Santa Monica Blvd

4575 Santa Monica

Our team has verified this company

East Hollywood • 4575 Santa Monica Blvd

1–2 Beds

$1,745–$2,950

dogs and cats ok
No
in-unit laundry
Yes
dishwasher
Yes
featured image of 200 N Vermont Ave

SageLA - BRAND NEW

Our team has verified this company

East Hollywood • 200 N Vermont Ave

1–2 Beds

$2,466–$4,920

dogs and cats ok
Yes
in-unit laundry
Yes
dishwasher
Yes
featured image of 1714 N Mccadden Pl

Fusion Encore Hollywood

Our team has verified this company

Hollywood Hills West • 1714 N Mccadden Pl

1–2 Beds

$2,199–$4,840

dogs and cats ok
Yes
in-unit laundry
Yes
dishwasher
No
featured image of 5700 W 6th St

Masselin Park West

Our team has verified this company

Mid-City West • 5700 W 6th St

1–2 Beds

$2,360–$3,520

dogs and cats ok
Yes
in-unit laundry
No
dishwasher
Yes
featured image of 125 4th Street

HWH Luxury Living

Our team has verified this company

Downtown Los Angeles • 125 4th Street

1–2 Beds

$2,400–$5,180

dogs and cats ok
Yes
in-unit laundry
Yes
dishwasher
Yes
featured image of 355 Glendale Blvd

Inspire Echo Park

Our team has verified this company

Greater Echo Park Elysian • 355 Glendale Blvd

1–3 Beds

$2,190–$6,182

dogs and cats ok
Yes
in-unit laundry
Yes
dishwasher
Yes
featured image of 4121 Wilshire Boulevard

Los Altos Apartments

Our team has verified this company

Greater Wilshire • 4121 Wilshire Boulevard

1–2 Beds

$3,250–$5,800

dogs and cats ok
Yes
in-unit laundry
Yes
dishwasher
Yes

Check availability

Full name*
Move-in date
Floor plan
By sending this inquiry, I accept Zumper's Terms and Conditions, Privacy Policy, and Community Values. By providing my phone number, I consent (not a condition of purchase) to be called and texted by 259-259 1/4 South Avenue 54.