Highlights
Pet Friendly
Location
Tour 10274 Ramblewood Dr
Contact
Invitation Homes
Our team has verified this companyNearby rentals
Renter hub
Property management
Invitation Homes
Our team has verified this companyLocated in Coral Springs, this property features a fenced backyard and pool, enhancing outdoor living. With top-rated schools nearby and an abundance of pet-friendly amenities, it caters well to those looking for a versatile living space. Additionally, the extensive photo gallery and competitive pricing position it favorably within the local market.
Things you’ll love
Great for
Features
| Patio |
Community
| Cats OK | Dogs OK |
| Garage Attached |
Grounds
| Fenced Yard | Garage Parking |
| Outdoor Space | Swimming Pool |
One-time.
One-time. Refundable.
Contact for more information on pet policy.
Questions about this property’s policies and fees?

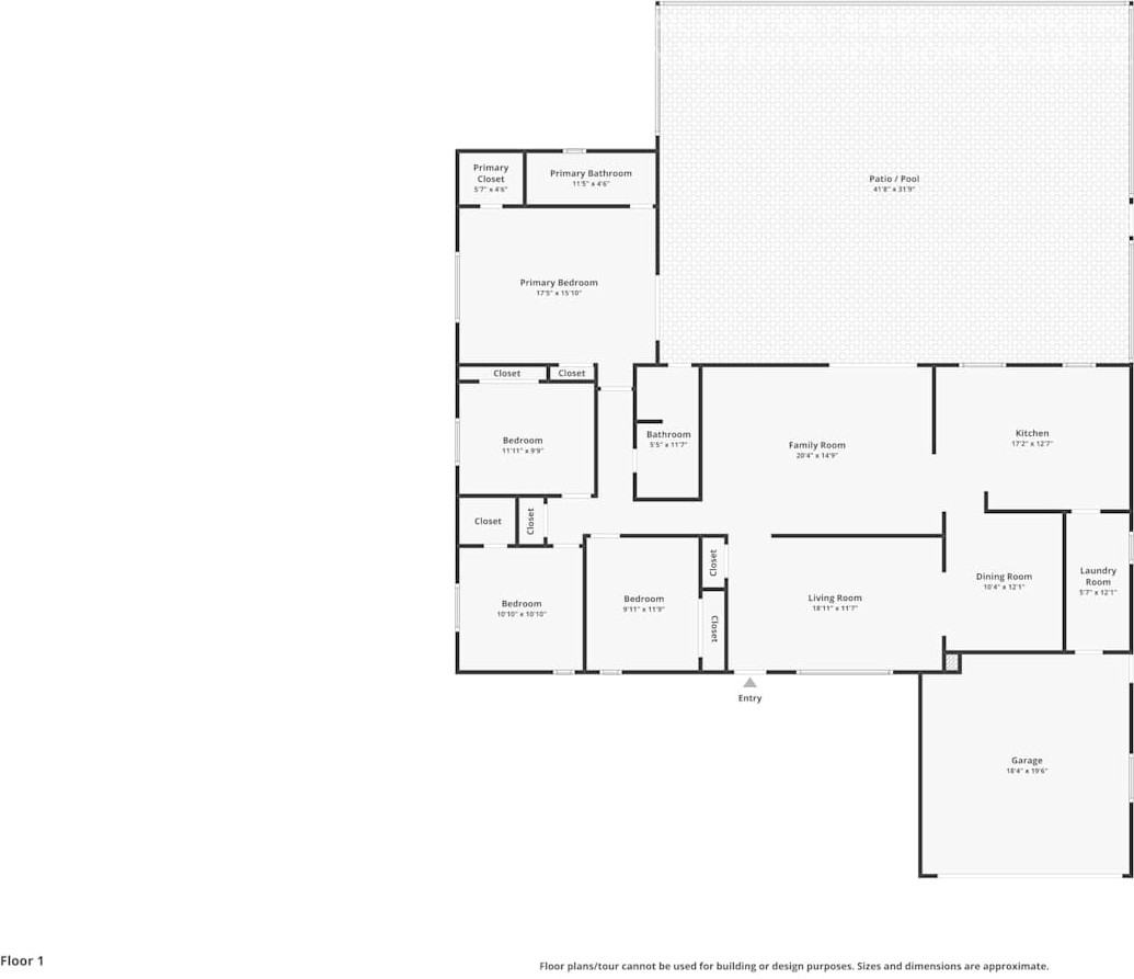
Lease this home and get more from Invitation Homes professional property management. This home comes fully loaded with quality amenities, must-have services, high-end tech and ProCare® professional maintenance. Your estimated total monthly payment is $4163.90. That covers your base rent, $3899.00 + our required services designed to make your life easier: Air Filter Delivery Fee ($9.95), Internet & Media ($85), Pool Maintenance Fee ($120), Smart Home with video doorbell ($40), and Utility Billing Service Fee ($9.95). Base rent varies based on selected lease term. This is the house where needs and wants live together. From the moment you walk through the front door, you’ll know – it’s the one. Picture yourself in this welcoming living area with tile flooring. The upscale kitchen boasts a layout perfect for both cooking and entertaining. The granite countertops and stainless steel appliances look great and are easy to clean. You'll get a fenced backyard that offers a bit of privacy from the outside world, a patio, pool and plenty of space to exercise or simply relax. Apply online today! At Invitation Homes, we offer pet-friendly, yard-having homes for rent with Smart Home technology in awesome neighborhoods across the country. Live in a great house without the headache and long-term commitment of owning. Discover your dream home with Invitation Homes. Our Lease Easy bundle – which includes Smart Home, Air Filter Delivery, and Utilities Management – is a key part of your worry-free leasing lifestyle. These services are required by your lease at an additional monthly cost. Monthly fees for pets and pools may also apply. Home Features and Amenities: Air Conditioning, Fenced Yard, Garage, Granite Countertops, Long Lease Terms, Luxury Vinyl Plank, Patio, Pet Friendly, Pool, Primary Bedroom on Main, Recessed Lighting, Single Story House, Smart Home, Stainless Steel Appliances, Tile, W/D Hookups, and professionally managed by Invitation Homes. Invitation Homes is an equal housing lessor under the FHA. Applicable local, state and federal laws may apply. Additional terms and conditions apply. This listing is not an offer to rent. You must submit additional information including an application to rent and an application fee. All leasing information is believed to be accurate, but changes may have occurred since photographs were taken and square footage is estimated. Furthermore, prices and dates may change without notice. Every approved applicant must confirm the status of pet(s) in their home through Petscreening. com and pay applicable pet registration fees prior to the execution of the final lease agreement. See InvitationHomes website for more information. Beware of scams: Employees of Invitation Homes will never ask you for your username and password. Invitation Homes does not advertise on, Social Serve, etc. We own our homes; there are no private owners. All funds to lease with Invitation Homes are paid directly through our website, never through wire transfer or payment app like Zelle, Pay Pal, or Cash App. invitationhomes com fraud-prevention For more info, please submit an inquiry for this home. Applications are subject to our qualification requirements. Additional terms and conditions apply. CONSENT TO CALLS & TEXT MESSAGING: By entering your contact information, you expressly consent to receive emails, calls, and text messages from Invitation Homes including by autodialer, prerecorded or artificial voice and including marketin..
How 10274 Ramblewood Dr compares to other nearby properties.
Positives
Considerations
| Neighborhood | Maplewood |
|---|---|
| Zip code | 33071 |
| Type | House for rent |
Can I afford to live at 10274 Ramblewood Dr?
Bedrooms
4+ bedroomsRent-to-income ratio
30%
$155,960/yr
| 7 years ago | $2,590 |
9850 ramblewood dr
coral springs, FL, 33071
10250 nw 53rd st
sunrise, FL, 33351
4690 coconut creek pkwy
coconut creek, FL, 33063
1400 nw 44th ave
coconut creek, FL, 33066
1010 nw 31st ave
pompano beach, FL, 33069